Terreno para chácara em condomínio fechado na Região Metropolitana de Curitiba, localizado na Rua Araruna, número 90, na Vila Conceição em Campo Largo/PR.
Área privativa de 1.060,00 m²
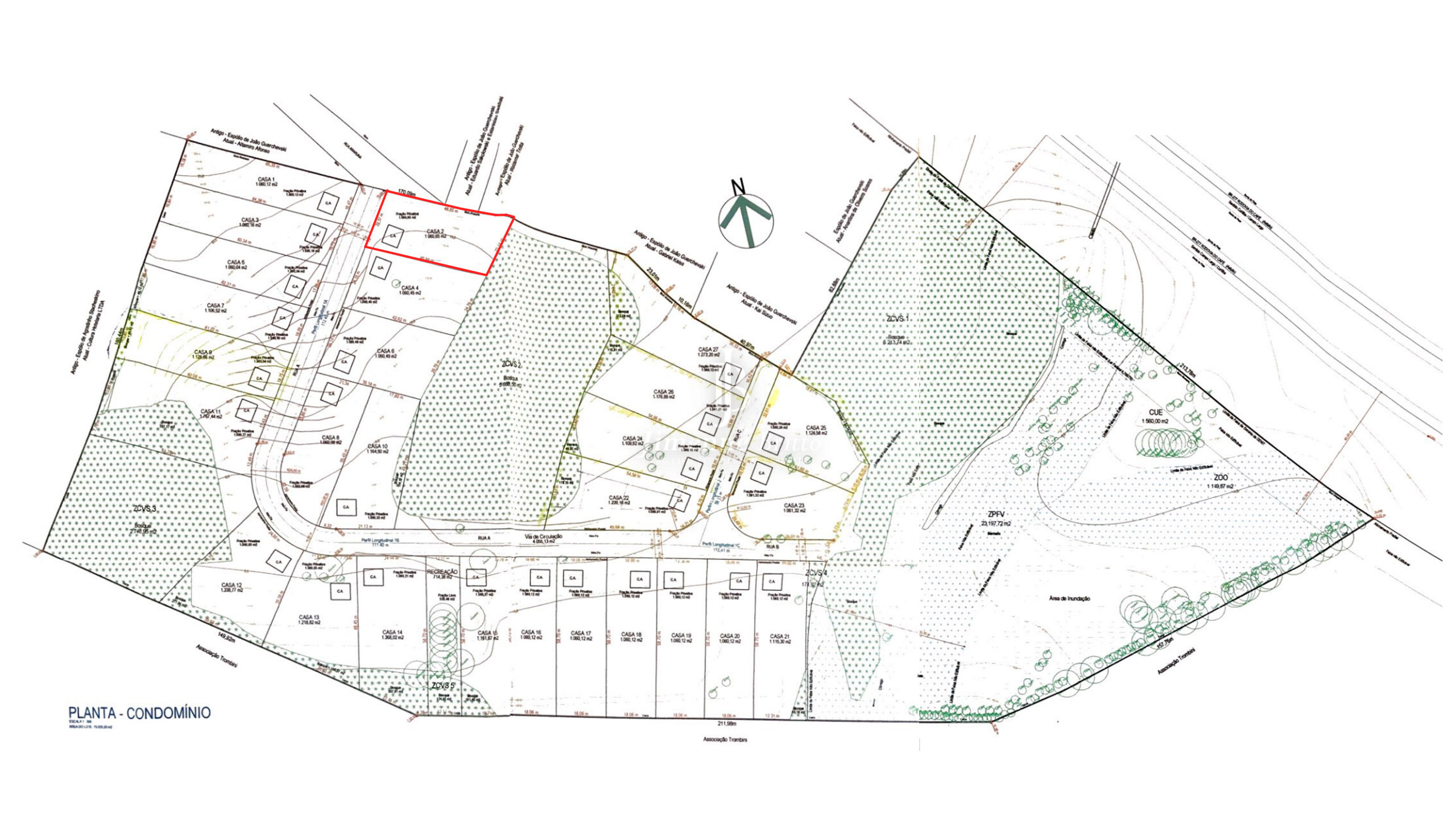
Anuncio referente ao Casa 02 do condomínio, destacada na imagem do mapa em branco.
A infraestrutura do condomínio conta com portaria, asfalto para acesso de todos os imóveis, lago e futuramente um espaço de lazer próximo ao lago.
Agende a sua visita!
Ref.: TEC0003-JM
*** Os valores podem ser alterados sem aviso prévio
CRECI-PR 25.221F
| Referência | TEC0003-JM - RIC |
| Endereço | Rua Araruna, 90 |
| Edificio | Residencial Villa Arvoredo |
| Bairro | Vila Conceição |
| Município | Campo Largo |
| UF | PR |
| Área total | 1.060,00 m² |
| Área privativa | 1.060,00 m² |
| Área terreno | 1.060,00 m² |
| Tipo de uso | residencial |
| Valor total | R$ 450.000,00 |
| Condomínio | R$ 360,00 |
Localização: Rua Araruna, 90 - Vila Conceição - Campo largo/PR